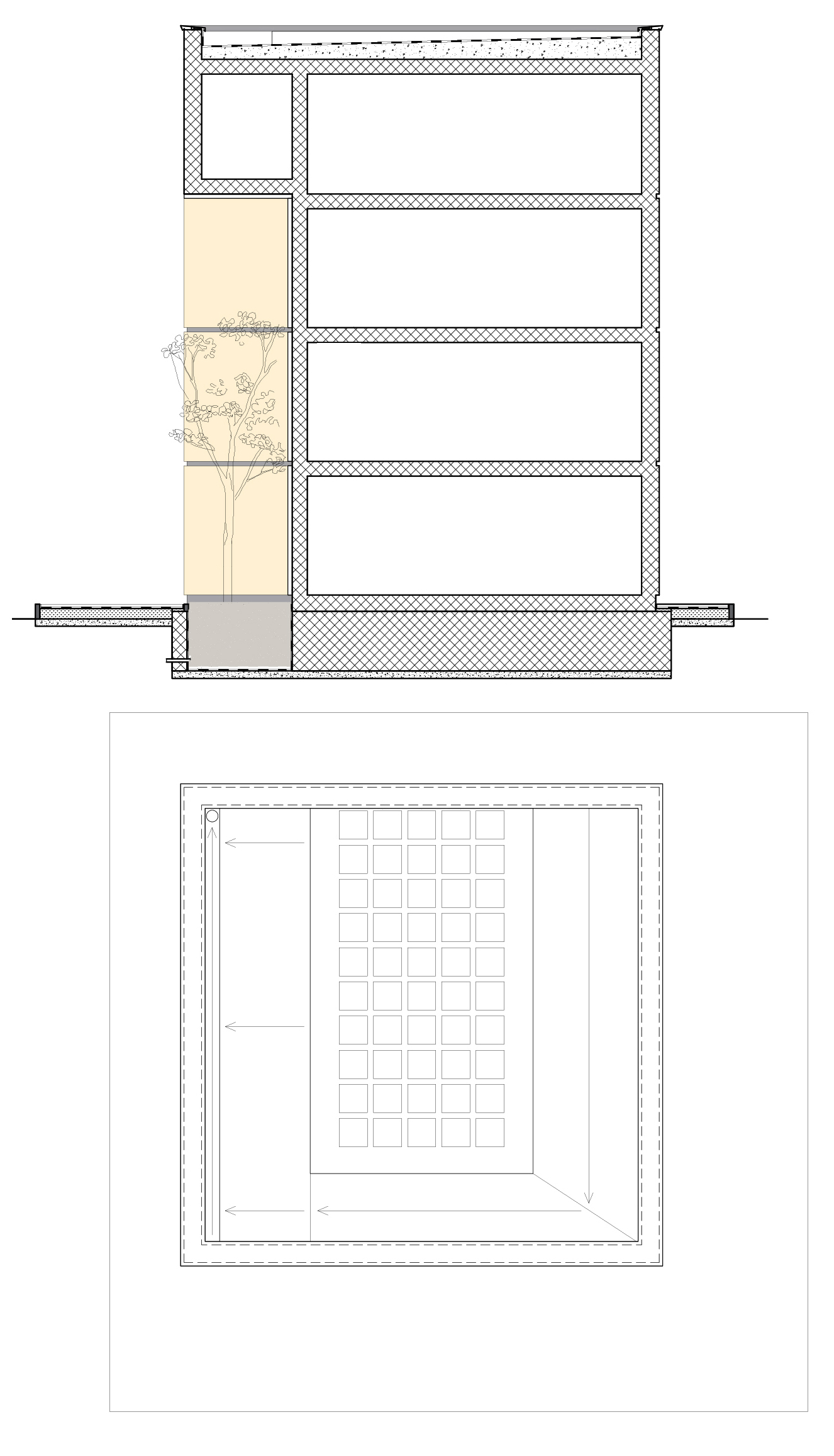
Edicola Funeraria
TIPOLOGIA:
Edicola funeraria
LUOGO:
Acquaviva delle Fonti
SUPERFICIE:
9 mq
STATO:
Realizzato
ANNO DI PROGETTO:
2021
ANNO DI REALIZZAZIONE:
2024
COMMITTENZA:
privata
TEAM DI PROGETTO:
biro+
FOTOGRAFIA:
Filippo Ferrarese






























